Award-Winning Private Residential Backyard.

LX House.

Landscape Backyard – Tree Generation

Award-Winning Design | 1st Prize | Luxembourg

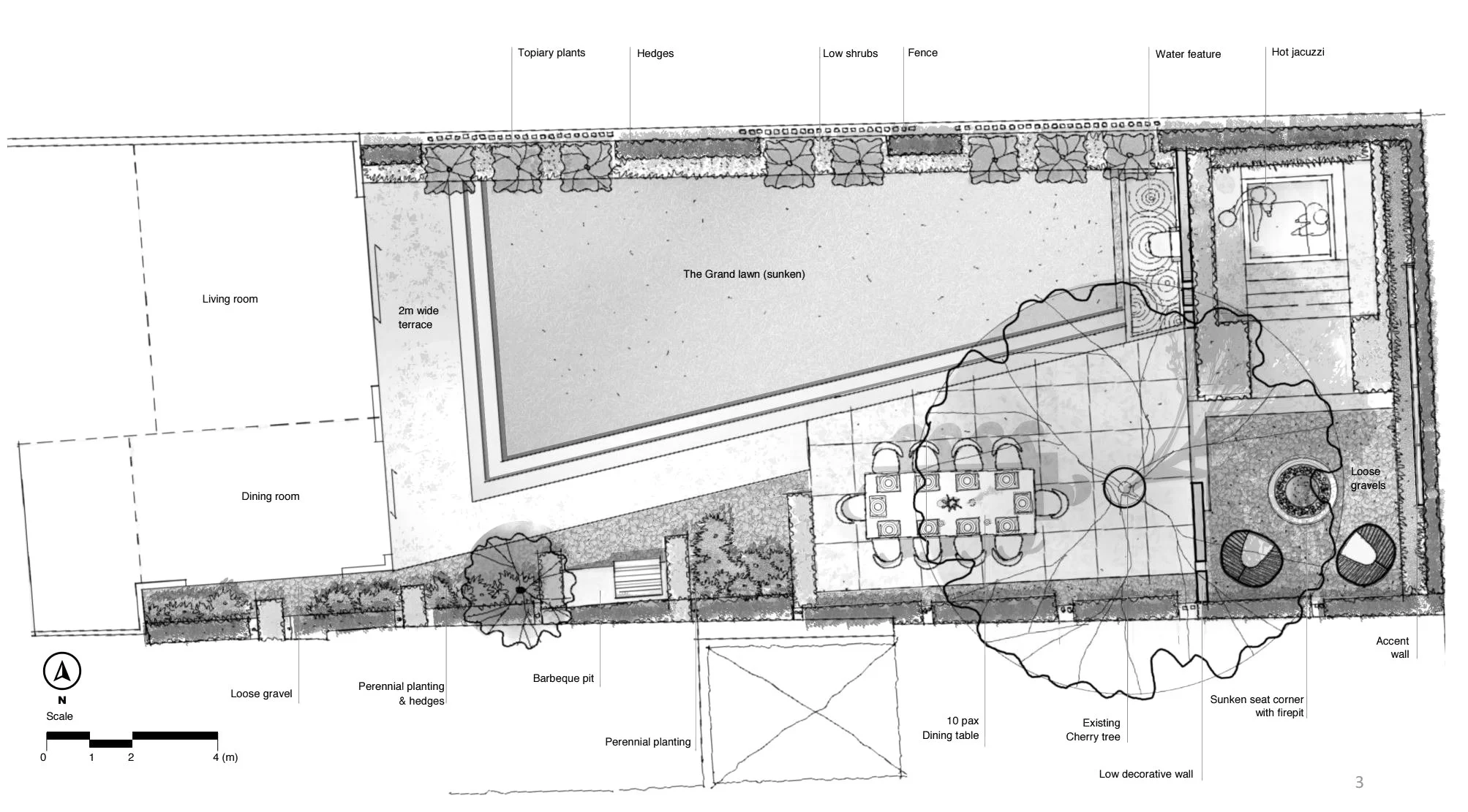
Tree Generation is a first-prize landscape design located in Luxembourg that reinterprets the backyard as a multi-generational living ground, anchored by the preservation of an existing cherry tree as a symbol of memory, continuity, and family heritage. The project establishes a strong spatial relationship between interior and exterior through large sliding openings that lead directly to a generous grand lawn, forming the social heart of the garden and supporting a wide range of activities from everyday play to larger family gatherings.

A clear angular geometry organizes movement and sightlines, directing views from the dining and living areas toward a water feature that serves as a visual focal point and orientation device. Program elements are layered to balance openness and privacy: an outdoor dining area beneath the cherry tree for shared meals, a sunken firepit and elevated jacuzzi corner for more intimate and contemplative use, and continuous planting bands that frame the site.

Mixed hedges, shrubs, and perennial planting soften edges, enhance microclimate comfort, and provide visual screening while maintaining permeability between spaces. Subtle level changes, low retaining walls, and integrated seating articulate transitions without disrupting the overall sense of flow.

As an award-winning proposal, Tree Generation demonstrates how a residential backyard in Luxembourg can transcend its functional role to become a meaningful landscape—one that nurtures daily life, supports evolving family needs, and preserves collective memory across generations.

Previous
Previous

MF Residence Kuala Lumpur

Next
Next

Millenia Square